Leworth Apartments, Windsor

Studio Act were appointed to transform a historic ironworks into a collection of eight boutique apartments each with its own distinct character and charm. Set within Windsor Town Centre Conservation Area, the original Victorian façade was sensitively restored while the interiors have been reimagined through adaptive reuse to create eight unique suites. Planning permission was granted for a discrete rooftop terrace tucked behind the slate roofs and providing an urban oasis and encouraging biodiversity.

Wherever possible, original features have been carefully preserved, while exposed structural ironwork subtly references its past life as a metal works. The interiors draw inspiration from the natural landscapes of Windsor Great Park, employing a soft, earthy palette of muted greens and rich timber textures.

Creating moments of delight is at the heart of our boutique hotel design, and Studio Act collaborated with local artists and makers to craft bespoke details that celebrate the local creative community and shape the brand story of Leworth Apartments..

https://www.leworthapartments.co.uk/

Photography by Rebecca Hope & Jordan Evans

Apartment and interior design with natural textures by Studio Act
Tiled kitchen and interior design by Studio Act
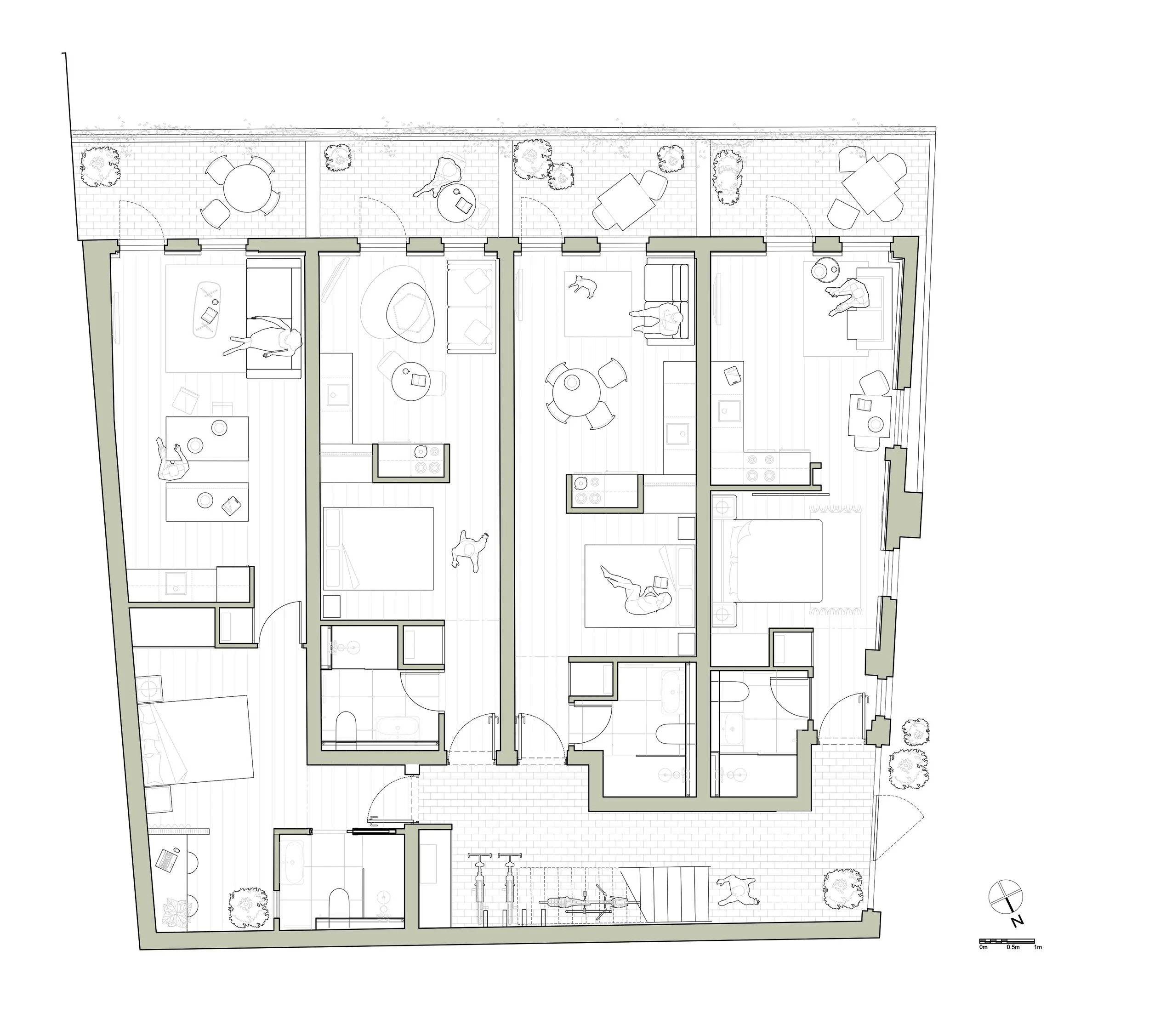
Plan View of Leworth Apartments by Studio Act

Ground floor plan view